סיום פרוייקט:
IM MOTORS
שטח פרוייקט:
תכנון ועיצוב:

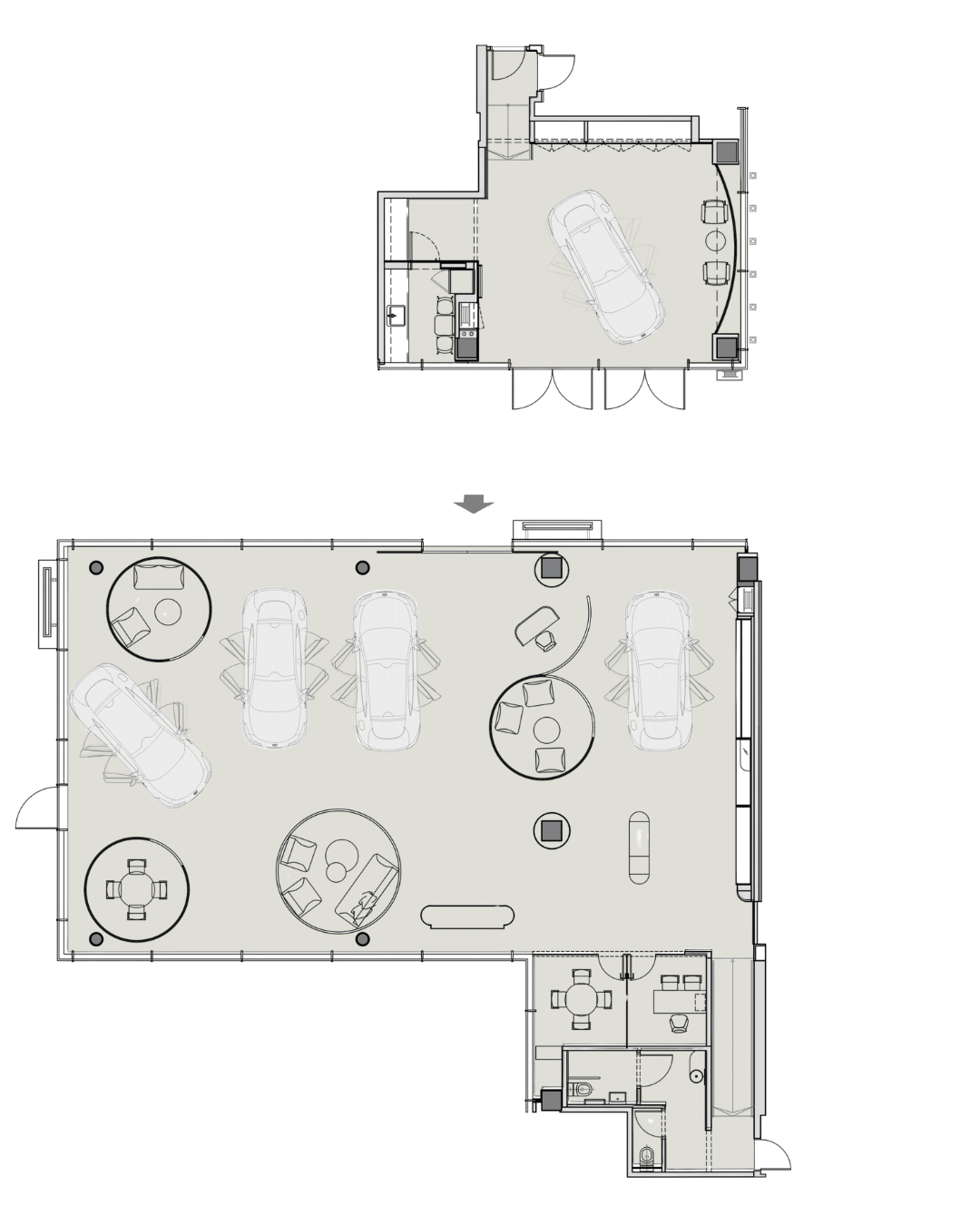
המשרד שלנו ליווה את תהליך הכניסה של המותג לשוק המקומי – מותג רכב מתקדם שמגיע מסין עם שפה עיצובית ברורה וזהות מגובשת. הצלחנו לפצח את ה-Corporate Identity של IM MOTORS ולתרגם אותו לחלל פיזי שמבטא טכנולוגיה, קידמה, אלגנטיות וחוויית לקוח יחודית.
העיצוב שואב השראה מעולמות הדיגיטל, התנועה והחדשנות, ומשלב חומרים מוקפדים וצורניות ברורה. באולם התצוגה שולבו אלמנטים עיצוהיים שונים בהשראת אותן צורות, מה שיוצר תחושת תנועה זרימה ורכות בתוך הסביבה הטכנולוגית. בין האלמנטים הבולטים: שרשראות מתכת מרחפות מהתקרה היוצרות תחושת תנועה זורמת, ומגדירות במקביל את אזורי המכירה בצורה אלגנטית – מבלי לפגוע בזרימה ובפתיחות של החלל. עמודים עם מעטפת דיגיטלית המקרינים תכנים משתנים – משלבים בין אדריכלות וטכנולוגיה. מסך אינטראקטיבי ייעודי המאפשר למבקר להתנסות ולהתחבר למותג. שפה אחידה זו תלווה את כל הסניפים הבאים כחלק מהפריסה הארצית.
הפרויקט מהווה חיבור בין זהות גלובלית לעיצוב מקומי, עם דגש על חוויית לקוח, יוקרה ונראות עכשווית – ומניח את התשתית לעוד מספר סניפים נוספים בעתיד הקרוב.














